Projekt

Byt 3kk

Rok: 2026

Byt 3kk – obývací pokoj s dubovou podlahou
Byt 3kk – pracovní kout a kuchyně
Byt 3kk – kuchyně s jídelním stolem
Byt 3kk – ložnicový kout
Byt 3kk – obývací pokoj
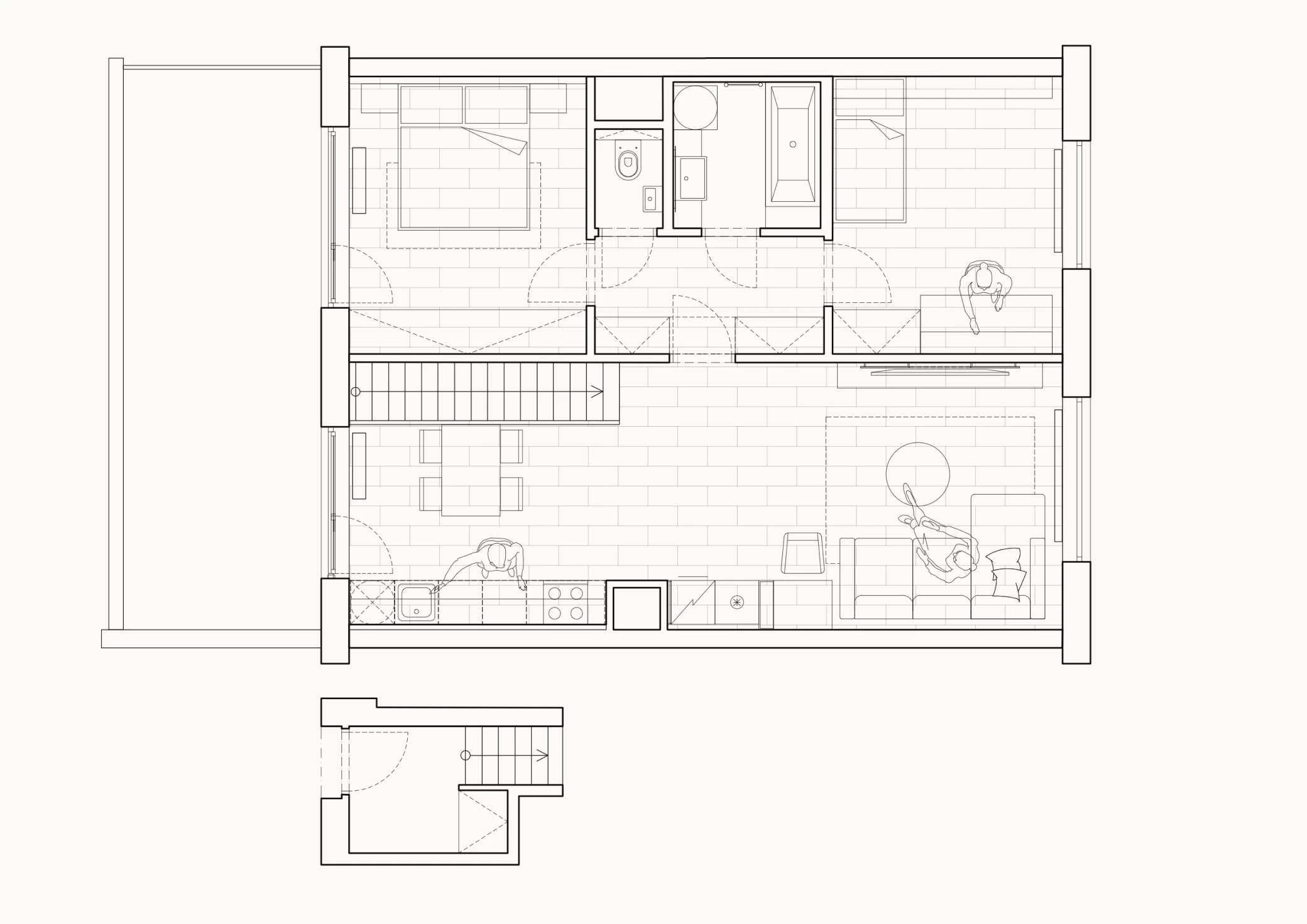
Byt 3kk – půdorys bytu
Byt 4kk Hotel